La arquitectura contemporánea vuelve a mirar hacia Canarias. En la edición 2025 del World Architecture Festival (WAF), uno de los certámenes internacionales más influyentes del sector, el jurado ha premiado como Mejor Edificio del Año a un proyecto situado en Tenerife: la Iglesia y Centro Comunitario del Santísimo Redentor, en el barrio lagunero de Las Chumberas.
El reconocimiento sitúa al Archipiélago en el mapa mundial de la arquitectura y pone en valor una obra que combina diseño, función social y un diálogo profundo con el paisaje volcánico del entorno.
Arquitectura contemporánea
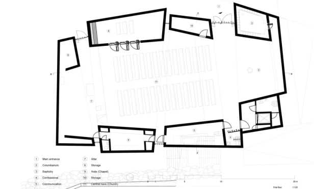
El edificio, diseñado por el arquitecto Fernando Menis, ha destacado por una estética que reivindica la fuerza del hormigón desnudo, las geometrías esenciales y el uso de la luz natural como recurso expresivo. El proyecto no solo plantea un espacio religioso, sino un equipamiento comunitario concebido para dinamizar un barrio históricamente vulnerable.
Menis ha defendido que esta obra pretende “crear un lugar donde no lo había”, generando identidad y aportando un punto de encuentro social en una zona situada entre San Cristóbal de La Laguna y Santa Cruz de Tenerife. Su construcción se prolongó durante quince años, un periodo que coincidió con un proceso de transformación urbana en Las Chumberas en el que el edificio ha terminado jugando un papel simbólico.
Inspiración principal
El jurado del WAF subraya el vínculo directo entre la obra y la geología de la isla. Los volúmenes que conforman el conjunto —tres grandes bloques de hormigón que emergen del terreno— evocan formas pétreas propias del paisaje insular. Esta relación se percibe aún más al recorrer las calles del barrio: el edificio aparece al final de la calle Volcán Estrómboli, integrándose con la toponimia y el espíritu del lugar.
La composición se completa con una plaza abierta y zonas ajardinadas que rodean tanto la iglesia como el centro parroquial. La idea es que el conjunto funcione como un espacio de uso cotidiano, más allá de las celebraciones litúrgicas.

La luz, un material más
Uno de los rasgos más destacados del proyecto es su tratamiento de la luz. El diseño incorpora grietas verticales y elementos de vidrio y metal que permiten que la claridad se introduzca en el interior de forma controlada. Según el arquitecto, la iluminación natural acompaña los distintos hitos del recorrido cristiano: ilumina la cruz al amanecer, recorre el altar al mediodía y señala los diferentes sacramentos conforme avanza la jornada.
Este juego de luces transforma la percepción del espacio y convierte la arquitectura en un elemento narrativo, capaz de adquirir significado simbólico sin recurrir a ornamentos.
Estructura, acústica y clima
El proyecto apuesta de manera contundente por el uso del hormigón. No solo como soporte estructural, sino como material expresivo y técnico: regula la temperatura interior gracias a su inercia térmica, ofrece durabilidad en un entorno húmedo y permite trabajar con texturas que refuerzan la identidad brutalista del edificio.
En materia acústica, el diseño combina superficies de hormigón visto con picón —piedra volcánica local— para lograr una calidad sonora adecuada tanto para la palabra hablada como para el canto coral. Esta solución demuestra que los materiales tradicionales de la arquitectura canaria también pueden integrarse en propuestas contemporáneas de alto nivel.

Trasciende lo arquitectónico
El premio del WAF reconoce no solo la calidad de la obra, sino también su dimensión social. La financiación del edificio provino en gran parte de las aportaciones de vecinos, fieles y entidades del entorno, lo que ha convertido al proyecto en un símbolo de esfuerzo colectivo.
Hoy, la Iglesia y Centro Comunitario del Santísimo Redentor se ha consolidado como un nuevo referente de la arquitectura canaria, un ejemplo de cómo la creatividad, la identidad local y la función pública pueden converger en una misma obra. Su elección como Mejor Edificio del Año 2025 confirma que Las Chumberas, un barrio en proceso de renovación, se abre camino en la esfera internacional gracias a una pieza arquitectónica llamada a perdurar.